闸阀 系列
蝶阀 系列
球阀 系列
安全阀 系列
止回阀 系列
截止阀 系列
减压阀 系列
旋塞阀 系列
电站阀 系列
保温阀 系列
疏水阀 系列
调节阀 系列
电磁阀 系列
氨气阀 系列
氧气阀 系列
气动阀 系列
温控阀 系列
液位计 系列
过滤器 系列
锻钢阀 系列
美标阀 系列
真空阀 系列
 
 
 

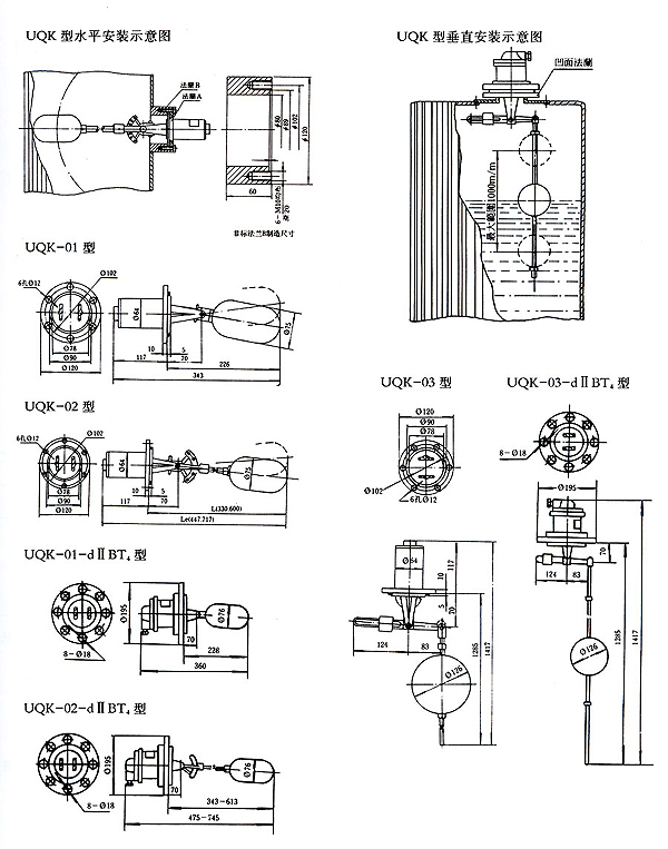
所属类别:液位计

商品名称:浮球液位控制器



浮球液位控制器

产品型号:

RUQK

概述:

  UQK型浮球液位控制器适用于对各种容器内液体的液位控制,当液位到达上、下切换值时,控制器触点发出通断开关式信号。
  产品系列分防爆和非防爆两大类,防爆型能用于易燃和易爆介质为1.2级及A、B、C组承压容器的液位控制。
  控制器不适用于对黄铜、不锈钢等材料有较强腐蚀作用以及含有导磁杂质的介质。


主要技术参数:


外形

型号名称
防爆等级
介质压力(MPa)
介质温度(℃)
切换差(mm)
整定方式
安装形式
电源及及触点容量和寿命
UQK-01型浮球液位控制器
1.0
150
≤14
不可调
水平

交流:220V、1.5A、110V、2.5A

直流:24V、2.5A、240V、0.5A

寿命:5×104

UQK-01-dIIBT4型防爆浮球液位控制器
dIIBT4
4.0
UQK-02型浮球液位控制器
1.0
150
25~550
有级可调
水平
UQK-02-dIIBT4型防爆浮球液位控制器
dIIBT4
4.0
UQK-03型浮球液位控制器
1.0
150
8~1000
无级可调
垂直
UQK-03-dIIBT4型防爆浮球液位控制器
dIIBT4
4.0


结构原理:


  UQK型浮球液位控制器由互为隔离的浮球组和触头组二大部分组成。

  当被测液位升高或降低时,浮球1随之升降,使其端部的磁钢2上、下摆动,通过磁力作用,推斥安装在外壳3内相同磁极的磁钢4上、下摆动,其另一端的动触点5便在静触头1-1及2-2间连通或断开。



   

 
       
 

营销总部:上海交通西路48号 电 话:86-021-56097727 13761168725(谢经理) 传 真:86-021-61198795

客服QQ:466983692点击这里跟上海恩光阀门客服聊天或者留言版权所有 ALL RIGHTS RESERVERD 2005-2015

隐私声明

网站地图